气体冲刷式介质压力过滤器
当前位置:首页>产品展示
气体冲刷式介质压力过滤器
■ 概述
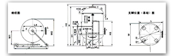
气体冲刷式介质压力过滤器主要用于去除水中的悬浮物。该过滤器为我公司引进美国PERMUTIT公司专有技术设计制造。设备由本体及内填介质组成。本体外壳材料有:不锈钢或优质碳素钢等。碳素钢材质的须内衬天然橡胶,称为钢衬胶,体内配有的双碟式布水器。设备内通常装填多层精制石英砂作为过滤介质。工作期间,带压力的原水由上部进入上集水腔,均匀地经介质层的过滤后进入下集水腔流出设备成为过滤水。设备配置气体冲刷功能,在再生反洗冲刷介质,以洗脱介质上及床层中吸附截留的污垢,以便反洗时去除这些污垢,提高出水水质并延长设备工作周期。该设备能与凝聚注入系统配合,组成功能更强大的过滤系统;而这必须具备气体冲刷功能,不然粘结在介质上及床层中的污垢无法去除。
■ 特点:
□ 双碟式布水器,阻力小,布水均匀;
□ 气冲功能提高了反洗洗净率,工作周期长;
□ 独特的床层布局具有截留、吸附双效应、过滤效率高、过滤深度好;
□ 与凝聚剂注入系统,进一步提高其功率是又一特点。


规格表
| 规格及型号 | SF-300 | SF-400 | SF-500 | SF-600 | SF-700 | SF-800 | SF-900 | SF-1000 | SF-1200 |
| 产水量m3/h | 0.5 | 1.0 | 2 | 3 | 4 | 5 | 6 | 8 | 12 |
| 荷重kg | 500 | 800 | 1000 | 1500 | 2000 | 2500 | 3000 | 4000 | 6000 |
| 规格及型号 | SF-1400 | SF-1600 | SF-1800 | SF-2000 | SF-2200 | SF-2400 | SF-2600 | SF-2800 | SF-3000 |
| 产水量m3/h | 15 | 20 | 25 | 30 | 40 | 45 | 55 | 65 | 75 |
| 荷重kg | 8000 | 10000 | 12000 | 14000 | 16000 | 19000 | 22000 | 26000 | 30000 |
其它参数表
| 名称 | 壳体材料 | 工作压力 | 内表处理 | 外表处理 | 氯剂型号 |
| 介质滤器 | 钢衬胶或不锈钢 | 0.4MPa | 衬胶或抛光 | 喷漆或抛光 | 精致石英砂 |

