|
 |
|
地址:无锡市新区硕放工业园新农路
电话:0510-85310988 85311380
传真:0510-85310898
手机:(0)13806182380
手机:(0)13606171338
网址:www.wxhuarun.com
邮件:sales@wxhuarun.com |
|
 |
|
|
|
 |
产品信息 PRODUCT |
当前的位置:储罐 > 产品信息 > 气体冲刷式介质压力过滤器 |
|
|
|
气体冲刷式介质压力过滤器 |
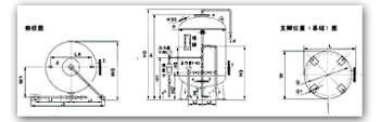
■ 概述
气体冲刷式介质压力过滤器主要用于去除水中的悬浮物。该过滤器为我公司引进美国PERMUTIT公司专有技术设计制造。设备由本体及内填介质组成。本体外壳材料有:不锈钢或优质碳素钢等。碳素钢材质的须内衬天然橡胶,称为钢衬胶,体内配有先进的双碟式布水器。设备内通常装填多层精制石英砂作为过滤介质。工作期间,带压力的原水由上部进入上集水腔,均匀地经介质层的过滤后进入下集水腔流出设备成为过滤水。设备配置气体冲刷功能,在再生反洗冲刷介质,以洗脱介质上及床层中吸附截留的污垢,以便反洗时去除这些污垢,提高出水水质并延长设备工作周期。该设备能与凝聚注入系统配合,组成功能更强大的过滤系统;而这必须具备气体冲刷功能,不然粘结在介质上及床层中的污垢无法去除。
■ 特点:
□ 双碟式布水器,阻力小,布水均匀;
□ 气冲功能提高了反洗洗净率,工作周期长;
□ 独特的床层布局具有截留、吸附双效应、过滤效率高、过滤深度好;
□ 与凝聚剂注入系统,进一步提高其功率是又一特点。 |
| |
|
|
|
| |
规格表
规格及型号 |
SF-300 |
SF-400 |
SF-500 |
SF-600 |
SF-700 |
SF-800 |
SF-900 |
SF-1000 |
SF-1200 |
产水量m3/h |
0.5 |
1.0 |
2 |
3 |
4 |
5 |
6 |
8 |
12 |
荷重kg |
500 |
800 |
1000 |
1500 |
2000 |
2500 |
3000 |
4000 |
6000 |
规格及型号 |
SF-1400 |
SF-1600 |
SF-1800 |
SF-2000 |
SF-2200 |
SF-2400 |
SF-2600 |
SF-2800 |
SF-3000 |
产水量m3/h |
15 |
20 |
25 |
30 |
40 |
45 |
55 |
65 |
75 |
荷重kg |
8000 |
10000 |
12000 |
14000 |
16000 |
19000 |
22000 |
26000 |
30000 |
其它参数表
名称 |
壳体材料 |
工作压力 |
内表处理 |
外表处理 |
氯剂型号 |
介质滤器 |
钢衬胶或不锈钢 |
0.4MPa |
衬胶或抛光 |
喷漆或抛光 |
精致石英砂 |
|
|
|
|